ReRoom

Okolica Basenu,
Loft Przemysłowy
Oryginał
Source Image
Przesłano
Wygenerowany(1224x768)
source
1.11%
Result Images
Result Images
Result Images
Pokaż więcej

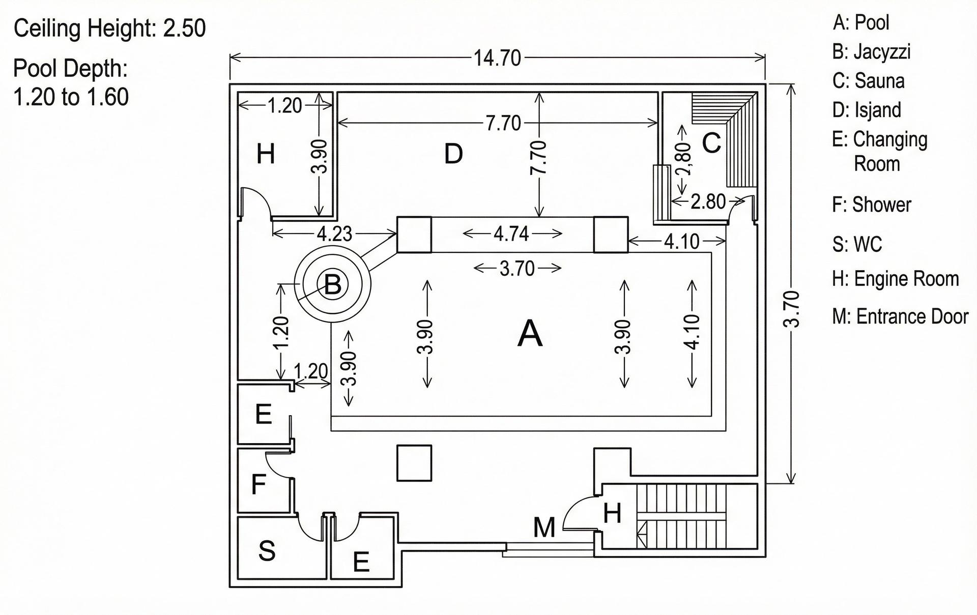
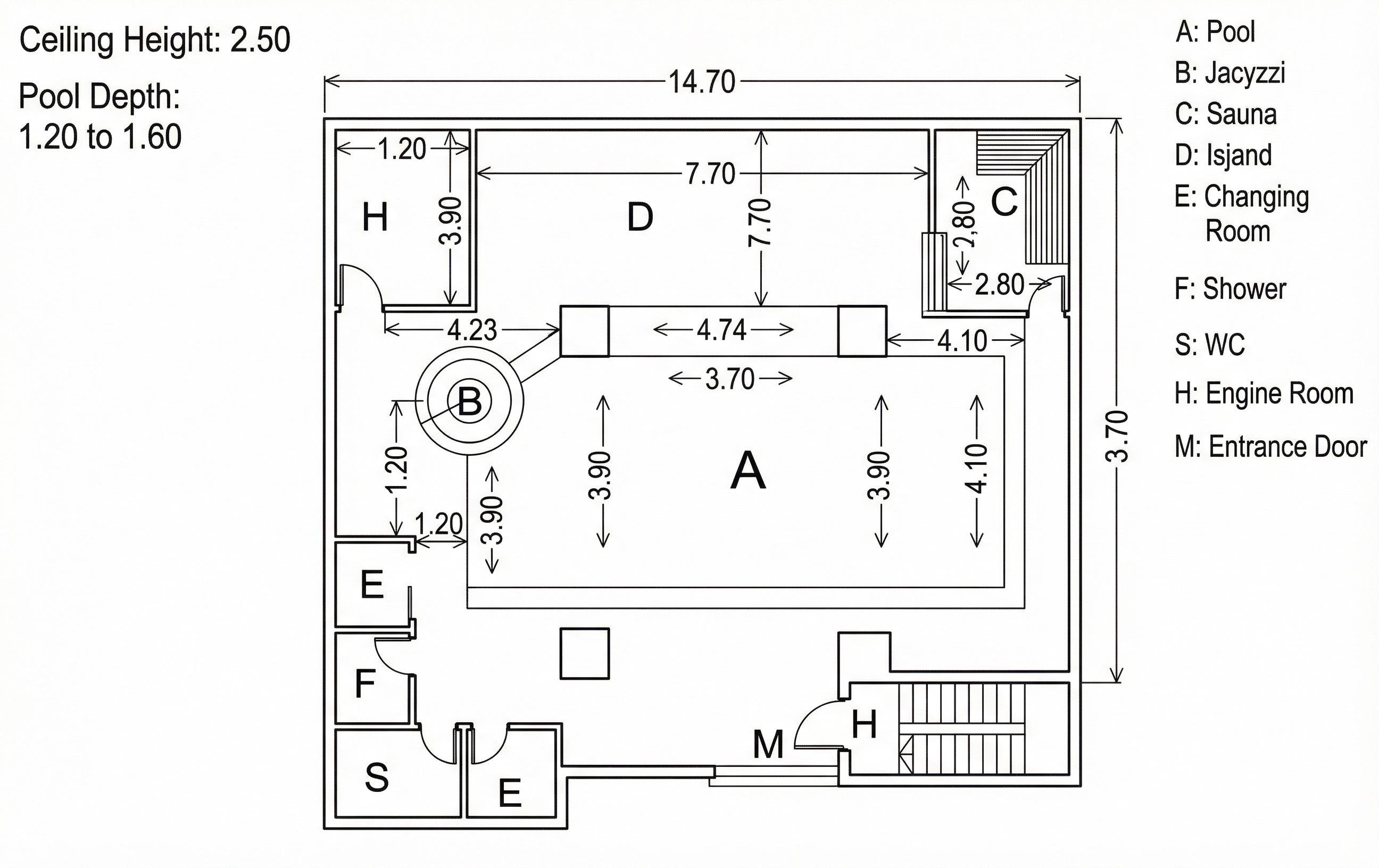
An incredibly lifelike, richly detailed, photorealistic top-down architectural photograph of a luxurious swimming pool complex. The scene is illuminated by bright, even overhead lighting, creating a clean and inviting atmosphere. Captured with a wide-angle lens, the composition showcases the entire layout, emphasizing the sleek, modern design and the interplay of different zones. The main pool, labeled 'A', is a large rectangular expanse of sparkling turquoise water, its interior meticulously lined with shimmering, light-catching ceramic tiles. Adjacent to the pool is the jacuzzi, 'B', a circular, bubbling feature with a darker tiled interior, suggesting warm, inviting water. To the upper right, the sauna, 'C', is depicted with the rich, warm tones of thermo-wood paneling, subtly hinting at the steamy enclosure within. The island area, 'D', designed as a contemporary drink bar, features clean lines and a polished surface, ready to serve guests. Surrounding the pool and throughout the complex, walls and floors are finished in a smooth, seamless microcement, offering a sophisticated industrial-chic aesthetic. The changing rooms and shower facilities, 'E' and 'F', are functional and streamlined, while the WC, 'S', and engine room, 'H', are neatly integrated into the design. The entrance door, 'M', with a set of stairs, suggests accessibility and utility. The overall impression is one of a high-end leisure facility, meticulously planned and executed with a focus on premium materials and modern aesthetics.